





















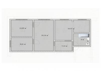
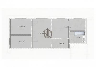
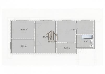
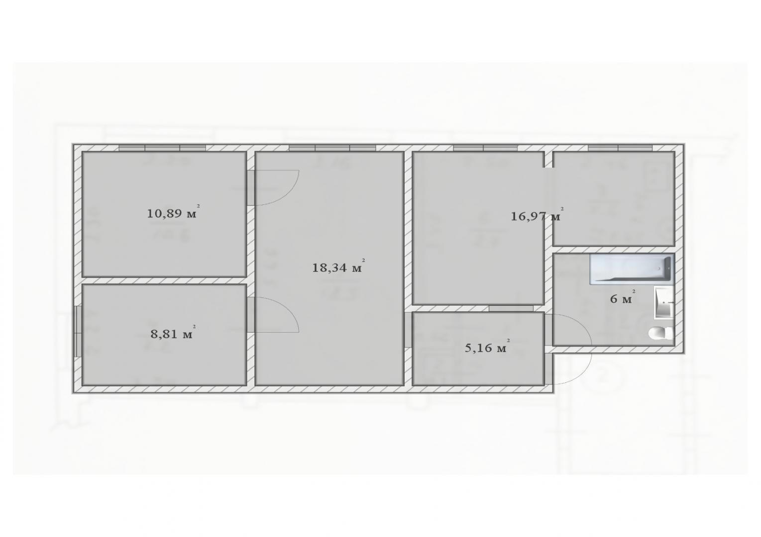
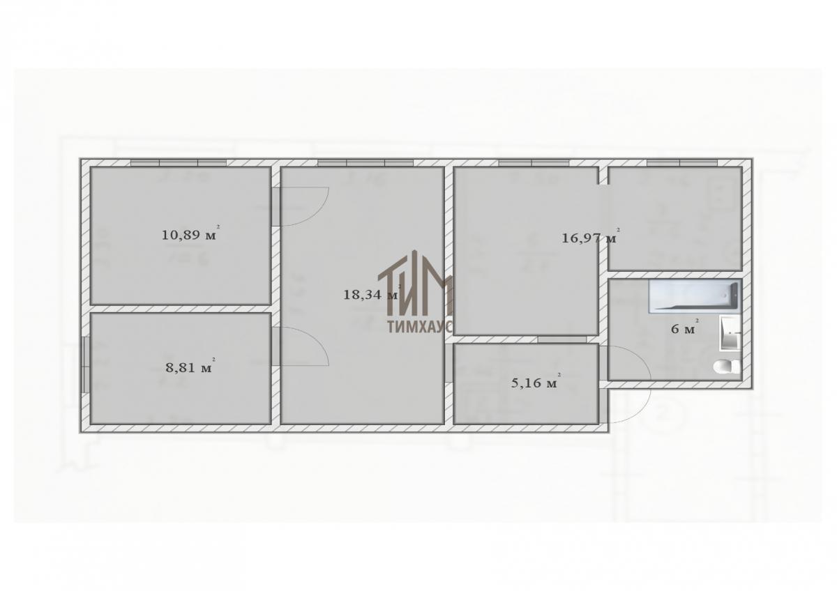
Продаётся уютная 3-х комнатная квартира, перепланированная из 4-х комнатной, по адресу: Омская область, Омск г., Кемеровская ул., 8. Общая площадь квартиры составляет 60 кв. м., из которых 37 кв. м. занимают жилые комнаты, а кухня — 16 кв. м. Квартира расположена на первом этаже, что обеспечит вам легкий доступ и удобство. Эта светлая квартира с окнами на юг дарит вам тепло и наслаждение от живописного вида на зеленые насаждения. Здесь вы сможете наслаждаться летом с открытыми окнами и строить уютные вечера в кругу семьи. В квартире выполнен капитальный ремонт в 2020 году: была проведена полная замена всех коммуникаций, установлены теплые полы в ванной и коридоре. Перед покраской стены были выровнены под ноль, а полы сделаны в одной плоскости, что увеличивает высоту потолков до 265 см и создаёт дополнительное ощущение пространства. Расположение квартиры также нельзя не отметить. В шаговой доступности находятся школа №77, детские сады №383 и №9, а также поликлиника № 13. Вам не придётся далеко ехать за покупками или развлечениями: рядом расположены все необходимые магазины, фитнес-центры и культурные места. Набережная Иртыша находится всего в нескольких шагах, что позволит вам проводить время на свежем воздухе. А для любителей активного отдыха — парк "Вокруг света" с крытым футбольным полем и многочисленными развлекательными центрами. В квартире остаётся вся встроенная техника: на кухне посудомойка, электро-духовка и вытяжка от немецкого бренда, а также стиральная машина в ванной. Вас порадует не только продуманный ремонт и функциональность квартиры, но и добрососедская атмосфера. Для вашей безопасности предусмотрены камера на парковке и система видеонаблюдения в подъезде. Не упустите свою возможность стать владельцем отличной квартиры! Звоните в удобное время для планирования просмотра и покупки. Дополнительная информация: комнаты Смежно-изолированная, санузел - совмещенный