Объявление №558028 Добавлено 04 Mar, 22:54 Обновлено 05 Mar, 12:20 3 просмотра

Продажа 2 комн. Омск. Нефтезаводская, 34 к 1

4400 т. р. 89 795,92 р/м²
Объект
Квартира
Тип
Вторичное жилье
Материал
кирпичный
Район
Советский
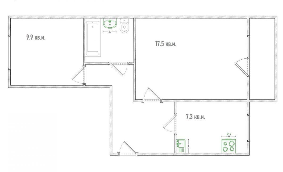
Площадь
49/27/7
Состояние объекта
стандартный ремонт
Этаж/всего этажей
1/5
Балконов/лоджий
-/1
Продавец:
Антонина
Телефон:
+7 (950) 338-05-05
Входит в состав Союза «Омская Гильдия риэлторов»
Входит в состав Российской Гильдии риэлторов
Сертифицированное агентство недвижимости

Центр недвижимости и ипотеки ''ТандемТ'' предлагает к продаже  уютную 2-х комнатную квартиру на 1 этаже 5 эт кирпичного дома в городке Нефтяниках. Квартира  светлая, теплая ,не угловая,  комнаты изолированные, косметический ремонт, окна ПВХ , общая  площадь 49.2 кв.м , кухня 7.3 кв.м , совмещённый санузел, застеклённый балкон, остается вся мебель, дружные соседи, чистый подъезд, ухоженный двор, район пользуется спросом для сдачи в аренду.   Необходимая инфраструктура для комфортной жизни расположена в шаговой доступности: школы, детские сады, магазины. Удобное транспортное сообщение позволяет добраться до любой части города, остановка в шаговой доступности. Квартира без долгов и обременений, документы готовы к продаже! Один собственник. Чистая продажа. Звоните ! Вы хотите приобрести нашу квартиру, но еще не продана своя? Примем на реализацию вашу недвижимость. ​​​​​​​ Гарантируем безопасное и комфортное сопровождение сделки. Центр ТандемТ обладает всеми необходимыми сертификатами и является членом Омского Союза риэлторов и Российской Гильдии риэлторов, что подтверждает высокий уровень профессионализма и качества предоставляемых услуг. ​​​​​​​Профессиональная ответственность АН застрахована на 5 млн рублей.Номер объекта: #5/537408/24613 Дополнительная информация: комнаты раздельные, санузел - раздельный

Пожаловаться на объявление