Объявление №558043 Добавлено 04 Mar, 22:56 Обновлено 04 Mar, 22:56 3 просмотра

Продажа 2 комн. Омск. 10-я Чередовая ул, 27

8000 т. р. 125 588,70 р/м²
Объект
Квартира
Тип
Вторичное жилье
Материал
панельный
Район
Ленинский
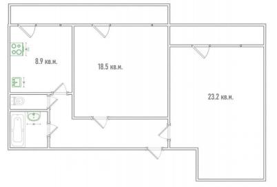
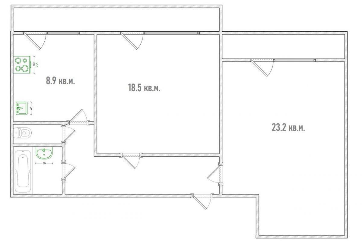
Площадь
63.7/41.7/9
Состояние объекта
стандартный ремонт
Этаж/всего этажей
9/10
Балконов/лоджий
1/-
Продавец:
Антонина
Телефон:
+7 (950) 338-05-05
Входит в состав Союза «Омская Гильдия риэлторов»
Входит в состав Российской Гильдии риэлторов
Сертифицированное агентство недвижимости

Центр Недвижимости и Ипотеки «ТандемТ» предлагает вашему вниманию просторную ,уютную 2 х комнатную квартиру 63.7 м2  с удобной планировкой, на 9-м этаже 10 - этажного панельного  дома 1995 г постройки. Квартира теплая , светлая ,не угловая, сделан косметический ремонт , кухня - 9 м², две изолированные комнаты 23.2 м2 и 18.5 м2 .Просторная прихожая,  вместительный шкаф купе ,окна ПВХ, алюминиевые радиаторы отопления в комнатах, 3  застекленных балкона , отделаны вагонкой - выход с каждой комнаты и с кухни, сан узел раздельный, тамбур на 2 квартиры, счетчики. Мебель и техника по договоренности. В подъезде чисто, новый  пассажирский  лифт, дружелюбные соседи, ухоженный двор с  детской площадкой и хоккейной коробкой. Отличная транспортная доступность! Всего 5 минут пешком до ближайшей остановки ,уехать можно в любую точку города. Дом находится в современном микрорайоне с хорошей транспортной развязкой. Всё для жизни в шаговой доступности,  детские сады ,  школы , гимназия , взрослая и детская поликлиники , аптеки,  спорткомплекс «Искра», КДЦ им. Свердлова, магазины : «Пятерочка», «Магнит», «Ярче», пункты выдачи OZON и WB, почта. Документы готовы , 1 собственник,  долгов и обременений нет, обменный вариант подобран. Не упустите свой шанс! Позвоните нам уже сегодня и оцените все преимущества своей новой квартиры.  Мы принимаем на реализацию вашу недвижимость, если вы ещё не продали свою квартиру! При необходимости наше агентство поможет с оформлением ипотеки на выгодных для Вас условиях. Почему выбирать «ТандемТ»: - Гарантируем безопасное, комфортное сопровождение вашей сделки. - Страховая гарантия профессиональной ответственности. - Член Омского Союза риэлторов и Российской Гильдии риэлторов.​​​​​​​ - Профессиональная ответственность АН застрахована на 5 млн рублей. Номер объекта: #5/537714/24613 Дополнительная информация: комнаты раздельные, санузел - раздельный

Пожаловаться на объявление