







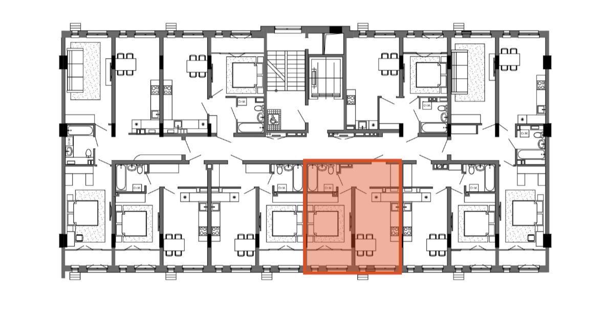
Продаётся 1-комнатная квартира в строящемся доме (Дом 1), срок сдачи: II-кв. 2026, общей площадью 37.47 кв.м., на 6 этаже. Новый жилой дом от Специализированного застройщика "Полат" расположен в г. Омск на пересечении улиц Красный Пахарь и 17-й Военный Городок.
О жилом комплексе Красный Пахарь
Новый монолитно-кирпичный дом находится в Центральном районе Омска.
Новостройка располагается в границах улиц 5-я Северная, Красный Пахарь и Военный 17й городок.
В доме есть кладовые на -1 уровне, и дополнительные помещения для хранения инвентаря на 1 и 2 этажах.
Новый 8-этажный дом на пересечении улиц Городок Военный 17-й и Красный Пахарь состоит из трёх подъездов.
Всего в новостройке 140 квартир площадью от 33 до 86 кв.м.
Преимущества ЖК по ул. Военный 17й городок/Красный Пахарь:
- монолитно-кирпичная новостройка;
- кладовые в цоколе;
- спортивные и детские площадки во дворе;
- есть пандус и понижающие площадки;
- предчистовая отделка квартир;
- остановка общественного транспорта через дорогу от дома.