Объявление №558666 Добавлено 24 Mar, 12:20 Обновлено 24 Mar, 12:20 14 просмотров

Продажа 1 комн. Омск. Хлебная ул, 12/25

820 т. р. 72 566,37 р/м²
Объект
Квартира
Тип
Вторичное жилье
Материал
деревянный
Район
Кировский
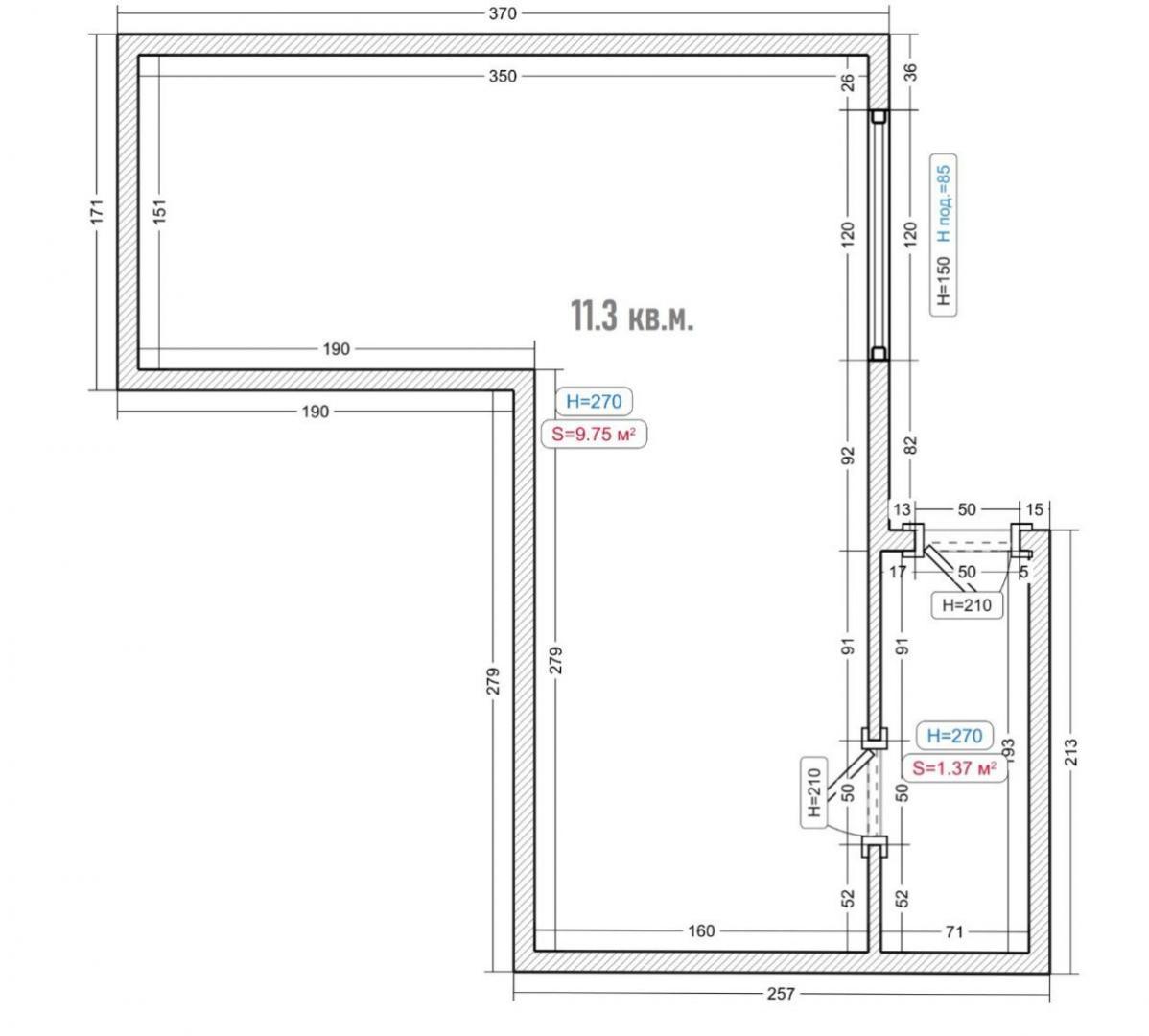
Площадь
11.3/8/3
Состояние объекта
стандартный ремонт
Этаж/всего этажей
1/1
Балконов/лоджий
-/-
Продавец:
Ольга
Телефон:
+7 (950) 338-05-05
Входит в состав Союза «Омская Гильдия риэлторов»
Входит в состав Российской Гильдии риэлторов
Сертифицированное агентство недвижимости

Центр недвижимости и ипотеки ТандемТ предлагает на продажу 1 ком. квартиру в КАО по адресу ул Хлебная угол ул Ялтинской, д 12,23, кв 1 --Дом бревенчатый рубленный,рассчитан на 4 квартиры,каждая с отдельным входом. --Квартира теплая,площадь--11,3кв м --Окно пластиковое (ПВХ), натяжной потолок. --Стены ровные обиты двп --Центральное отопление и электричество подключены, вода и канализация можно подключить в комнату , т к в дом все заведено. В квартире имеется погреб выложенный кирпичом ,высота 3м . --Двор общий на 2 квартиры, так же имеется земельный участок для посадок 1 сотка --Во дворе стоит капитальный гараж 4*6*3м--В квартире остается холодильник, 4 ком газовая плита,газовый баллон, шкаф для одежды. -- Безопасность сделки:Мы гарантируем безопасное и комфортное сопровождение сделки. Наша компания TандемТ является членом Омского Союза риэлторов и Российской Гильдии риэлторов, что подтверждает наш профессионализм и надежность.`Номер объекта: #5/537866/24613 Дополнительная информация: комнаты раздельные, санузел - раздельный

Пожаловаться на объявление

Похожие объекты