Объявление №558672 Добавлено 24 Mar, 12:30 Обновлено 08 May, 12:10 57 просмотров

Продажа ул. Причальная, 2, корп. 19

15888.89 т. р. 28 888,89 р. /м²
Объект
Коммерческая недвижимость
Район
ул. Причальная, 2, корп. 19
Площадь
550
Этаж/всего этажей
1/1
Продавец:
Сергей
Телефон:
+7 (901) 618-50-00

Продажа помещения под любое производство/склад от собственника!
Помещение может использоваться под любой вид деятельности, пищевое производство, деревообработка, металлообработка, склад, мебельное производство, сборочное производство, фасовка.
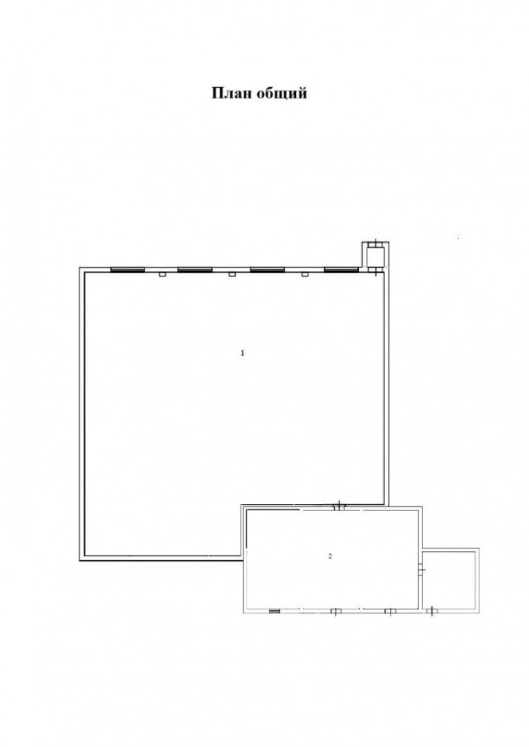
Площадь комплекса 1 300 квадратных метров на участке 1 059 квадратных метров.
Состоит из двух отдельных соединённых между собой зданий.
Поэтому рассматриваем как продажу целиком, так и по отдельности:
1 300 м², 750 м² и 550 м²
Основные характеристики:
Общая площадь территории составляет 8 905 м²
Производственные-складские помещения занимают 1 064 м²
Офисные площади и места общего пользования составляют 236 м²
Помещение подготовлено для организации пищевого производства полного цикла. Соблюдены принципы поточного производства, соответствует действующим требованиям ГОСТа, СанПина и требованиям пожарной безопасности
Отделка:
Цеха – кафель, индустриальная напольная плитка, подогреваемые полы
Офисы – современная стандартная
Помещение полностью оснащено оборудованием для производства мясных полуфабрикатов и рассчитано на выпуск готовой продукции до 200 тонн в месяц
Стоимость оборудования обсуждается отдельно (в случае, если оно заинтересует нового собственника) и не входит в основную цену
В помещении расположена газовая котельная
Итого: 1 300 м² площадей для развития бизнеса

Имеется газ, центральная канализация, подача воды и электричество мощностью 150 кВт
Высота потолков в производственных цехах — от 3.0 до 6.0 метров
Созданы идеальные условия для приёма, хранения, обработки и подготовки сырья, изготовления, фасовки, хранения и отгрузки готовой продукции
Погрузочные и разгрузочные ворота
Место для отстоя и маневрирования длинномерной техники
Участок освещен и охраняется.
Имеется пропускной режим.
Цены:
1 300 м² - 39 000 000 Р
750 м² - 23 333 333 Р
550 м² - 15 888 888 Р

Пожаловаться на объявление