Объявление №555976 Добавлено 19 Dec, 17:15 Обновлено 05 May, 12:39 120 просмотров

Аренда Омск. улица Фрунзе 1к4

1653750 р. в месяц 2 250,00 р. /м²
Объект
Коммерческая недвижимость
Район
Центральный
Ориентир
БЦ Миллениум
Площадь
735
Этаж/всего этажей
12/12
Назначение
офис
Срок оплаты
сутки
Телефон
нет
Интернет
нет
Срок сдачи
любой
Продавец:
ООО Компания "Омская недвижимость"
Телефон:
+7 (913) 634-11-77

Премиальный офис 735 м² в БЦ «Миллениум» — ваша новая бизнес-резиденция в центре Омска

Станьте частью деловой элиты Омска! Уникальное предложение — аренда просторного двухуровневого офисного помещения площадью 735 м² в знаковом бизнес-центре «Миллениум» на улице Фрунзе.

Это не просто офис, это — статус, безупречная инфраструктура и максимальная эффективность для вашей команды.

Ключевые преимущества локации и БЦ:

 - Элитная локация: Ул. Фрунзе, исторический и деловой центр Омска. Престижный район с развитой транспортной развязкой.

 - Имидж компании: БЦ «Миллениум» — один из самых узнаваемых и респектабельных бизнес-центров города. Работа здесь говорит о стабильности и успехе вашего бизнеса.

 -  Полная инфраструктура: Круглосуточная охрана, профессиональная управляющая компания, подземный паркинг, лифты с индивидуальным доступом в офис.

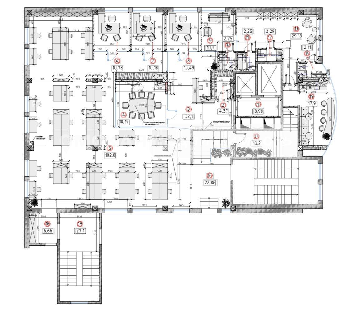
О помещении (735 м²):

 -  Свободная планировка: Чистое shell & core пространство или возможность адаптации под ваш проект. Вы можете создать идеальный офис, отвечающий корпоративным стандартам и потребностям сотрудников (готовы взять отделку на себя и обсудить условия).

 -  Возможна планировка: Разделение на кабинеты руководства, open-space зоны, переговорные комнаты, ресепшен, зоны отдыха и кухни-столовой.

 -  Отличное остекление: Большие окна гарантируют обилие естественного света и панорамные виды на город, терраса на крыше.

 -  Готовность к работе: Современные инженерные системы (кондиционирование, вентиляция, электрика с резервом мощности, качественные телекоммуникации).

Идеально для:

 -  Крупной региональной или федеральной компании, ищущей представительский офис в Омске.

 -  Финансовой организации, юридической фирмы, штаб-квартиры холдинга.

 -  IT-компании, которая ценит комфорт и современную среду для креативной работы.

Условия аренды:

 -  Индивидуальный подход. Рассматриваем долгосрочное партнерство.

Важно:

Пожаловаться на объявление