Объявление №558957 Добавлено 02 Apr, 12:09 Обновлено 20 May, 21:34 79 просмотров

Продажа СНТ "Тепличный-1"

4800 т. р. 61 538,46 р/м²
Объект
Дом
Тип объекта
Дом
Район
СНТ "Тепличный-1"
Ориентир
Черлакский тракт
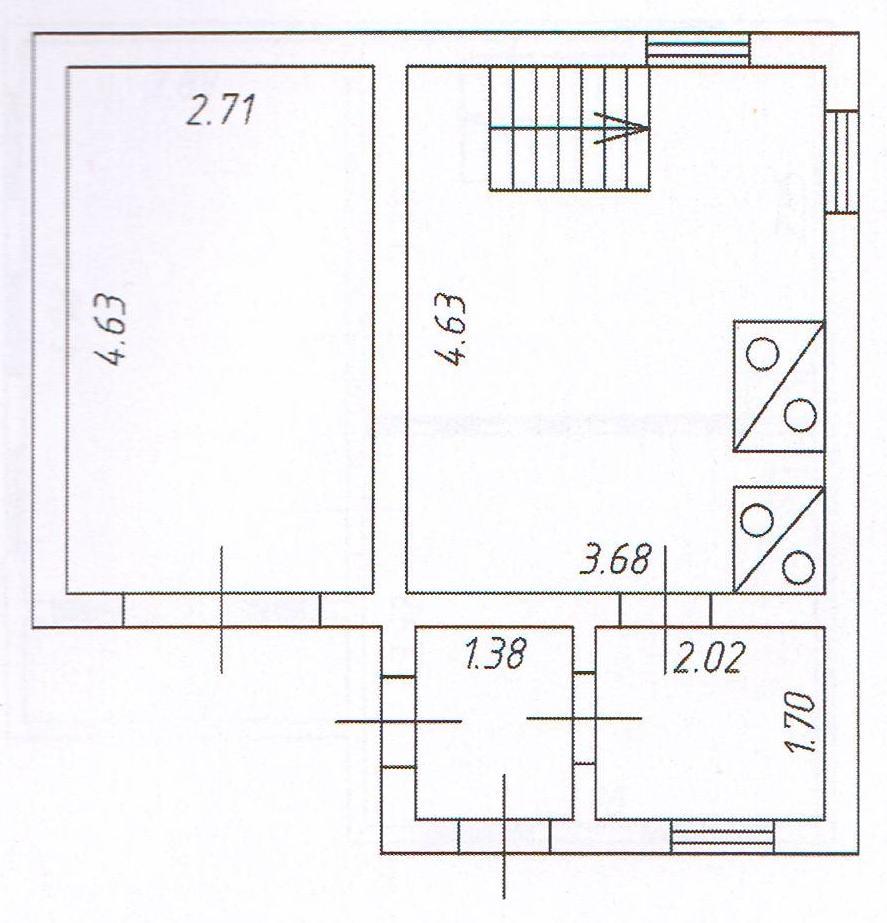
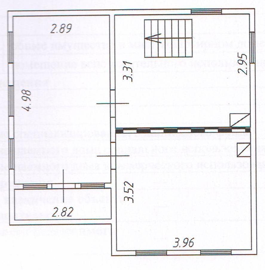
Площадь
78/43/12
Площадь участка
14
Этажность
2
Количество спален
4
Тип отопления
печное
Материал
кирпичный
Коммуникации
электричество
Постройки
баня, гараж
Состояние объекта
готов
Продавец:
Марат
Телефон:
+7 (913) 633-69-69
Входит в состав Союза «Омская Гильдия риэлторов»
Входит в состав Российской Гильдии риэлторов

​            На чистой срочной продаже дача, на 23 км Черлакского тракта, в СНТ “Тепличный -1”, филиал 2. Хорошая транспортная доступность, 15 минут от города - по отличной трассе. Живописное место: СНТ граничит с р. Иртыш и на въезде в СНТ - два озера с водоплавающими птицами и рыбалкой. Недалеко расположен горячий минеральный источник и песчаный пляж. Прямой выход на берег Иртыша в 300 метрах.

             Добротно построенный двухэтажный кирпичный дом с камином и печью, общей площадью 77,8 кв.м., высокий, сухой, 4 комнаты. Один совершеннолетний собственник. На 1-ом этаже дома расположена гостиная, гараж; на втором – спальня и две комнаты. Возможна прописка.

             Земельный участок отмежеван, общая площадь 1363 кв.м. На земельном участке построен кирпичный хозблок с кухней, душевой, баней, большой верандой. Вода заведена. Бойлер 50 л. Есть мангальная зона, при въезде на участок - парковка на 3 автомобиля. Электричество - круглый год, мощность 15 кВт. Летний водопровод работает ежедневно без перерывов. Есть возможность провести городскую воду.

             СНТ расположено на территории бывшего тепличного хозяйства, почва очень плодородная. На участке шикарные крупномеры.

             Дружелюбные соседи, в том числе, проживающие круглогодично. От остановки и магазина – 300 м. Хорошие подъездные пути, охраняемая территория (на въезде в СНТ - шлагбаум). Проезд к участку круглогодичный. Ходит общественный транспорт: 3 автобуса и маршрутные такси. Документы готовы к продаже. Один взрослый собственник. Обременений нет.

            Специалист АН "Держава" покажет Вам дачу в удобное для Вас время. Приятного Вам просмотра! Этот объект недвижимости можно приобрести по ипотечному кредиту! Полное юридическое сопровождение сделки, подбор варианта, помощь в оформлении ипотеки. Выгодная ипотека для Вас через нас!!!

Пожаловаться на объявление