Объявление №558503 Добавлено 17 Mar, 15:19 Обновлено 28 Apr, 17:47 51 просмотр

Продажа муниципальный округ Омский район. посёлок Иртышский. посёлок Иртышский Юбилейная улица 42

24595 т. р. 59 265,06 р/м²
Объект
Дом
Тип объекта
Таунхаус
Район
посёлок Иртышский Юбилейная улица 42
Площадь
415/86/116
Площадь участка
10
Этажность
2
Количество спален
8
Тип отопления
газовое
Материал
кирпичный
Коммуникации
канализация, водоснабжение, электричество
Постройки
гараж
Состояние объекта
готов
Продавец:
Олег Васильевич
Телефон:
+7 (904) 587-98-97
Входит в состав Союза «Омская Гильдия риэлторов»

Уважаемые покупатели!

Хотите жить загородом с городским комфортом? Мы предлагаем новый жилой дом!!! Для одной большой семьи или на две семьи в собственных квартирах!

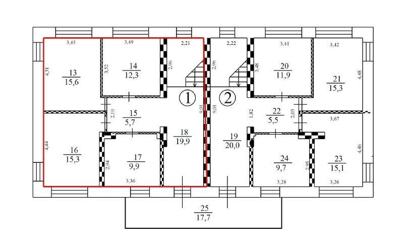
В каждой части дома (квартиры): - прихожая - 8,1 кв.м; - кухня-гостиная - 57,6 кв.м; - три спальни (на втором этаже) - 15,6 кв.м / 15,3 кв.м / 12,3 кв.м; - сан.узел (первый этаж) - 4,9 кв.м; - сан.узел (второй этаж) - 9,9 кв.м; - балкон; - гараж - 23,9 кв.м, Территория дома - 10 соток, заведены все коммуникации газ, свет, канализация.

Сделана пред чистовая отделка! Ремонт делаете на свой вкус! По договоренности, мы поможем и сделаем Вам ремонт!

Поселок со всей инфраструктурой! Школа, садик, магазины, банк, больница.

До города 15 минут! В настоящее время ведутся работы по расширению автодороги в город, до 4 полос.

Озеро, р.Иртыш, рыбалка, пляж, лес, грибы, ягоды, экологически чистый район! Подходит под ипотечные программы!

Приглашаем, Вас, ознакомиться с этим предложением лично и убедиться во всех его достоинствах!

Остались вопросы? Звоните!

Мы готовы обсудить Ваше предложение! Показ в удобное время, по договоренности!

Пожаловаться на объявление