


















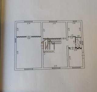
Предлагаем вашему вниманию прекрасный двухэтажный дом, построенный в 2020 году, расположен по адресу: Омская область, Омск г., Окраинная ул. Этот объект станет отличным выбором для тех, кто ценит комфорт, пространство и тишину. Удалённость всего в 3 км от города позволяет наслаждаться всеми преимуществами загородной жизни, сохраняя при этом удобный доступ к городской инфраструктуре. На первом этаже дома вы найдете уютную прихожую, современную кухню, санитарный узел и три просторные комнаты, предлагающие множество вариантов для организации вашего жизненного пространства. Второй этаж включает две светлые спальни, что идеально подходит для семьи или обеспечит комфортное размещение гостей. Внутри дома установлен надежный электрический котел, а центральный водопровод и локальная канализация создают все условия для комфортного проживания. Также имеется возможность подключения газа, что является дополнительным преимуществом. Придомовая территория радует ухоженностью и хорошей планировкой. Участок площадью 10 соток полностью огорожен, на нем располагается гараж, баня и закрытая парковка для газели. Благоустроенный участок украшен плодово-ягодными посадками и теплицей, что позволит радовать вас свежими овощами и ягодами на протяжении всего сезона. Участок расположен на возвышенном месте садоводства, нет подтопления, грунтовых вод. Этот дом находится на чистой продаже, у него один собственник, что обеспечивает простоту сделки. Подходит под различные сертификаты и ипотеку. Возможность просмотра по предварительной договоренности. Не упустите шанс стать владельцем этого уютного и современного дома — звоните прямо сейчас! Торг!!!