Объявление №555103 Добавлено 19 Nov, 09:51 Обновлено 17 Dec, 09:50 38 просмотров

Продажа Омск. Омск, ТСН СНТ Ромашка, 4-я аллея, 27

6999 т. р. 66 341,23 р/м²
Объект
Дом
Тип объекта
Дом
Район
Центральный
Площадь
105.5/-/-
Площадь участка
-
Этажность
1
Количество спален
не указано
Тип отопления
газовое
Материал
другой
Состояние объекта
готов
Продавец:
Брич Елена Александровна
Телефон:
+7 (906) 918-60-00
Входит в состав Союза «Омская Гильдия риэлторов»
Входит в состав Российской Гильдии риэлторов

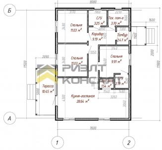
Предлагаю к продаже дом в СНТ Ромашка. СНТ находится в черте города. Развитая инфраструктура. Рядом новая школа Амура, детские сады, торговые комплексы, сетевые магазины. Автобусная остановка на выходе из СНТ, можно уехать в любую часть города. Дом: кухня - гостиная , 3 спальни, 2 сан. узла, тех . помещение, терраса , крыльцо Остекление: пластиковые окна , профиль 5 камер Отопление: водяное отопление радиаторы, электрический котел 12 Квт. Электрика: скрытая разводка по всему дому Водоснабжение: Централизованное Канализация: септик 3м.куб переливной. Каркас наружных стен выполнен из доски хвойных пород 50х150 с заполнением утеплителем технониколь 150мм Наружная облицовка - имитация бруса ( металл) Наружная облицовка цоколя - имитация бруса ( металл) цвет согласно эскиза Кровля - металлочерепица , вентиляционные элементы Фундамент - ЖБИ сваи длина 4.0 м Пароизоляция - изоспан 150мкм Ветрозащита - гидроизоляция - ветрозащитная мембрана изоспан. Внутренняя отделка стен - гипсокартон 18мм в 2 слоя Перегородки - на деревянном каркасе с отделкой ГКЛ 12мм с двух сторон Утеплитель полов - технониколь 200мм Утеплитель потолка - технониколь 200мм Подходит под ставку - 6% . Помощь в оформлении без первоначального взноса. Законно.

Пожаловаться на объявление