Объявление №558154 Добавлено 04 Mar, 23:09 Обновлено 19 Apr, 11:50 53 просмотра

Продажа Омск городской округ. ТСН СНТ Колос. -, 247

2700 т. р. 44 925,12 р/м²
Объект
Дом
Тип объекта
Дом
Район
-, 247
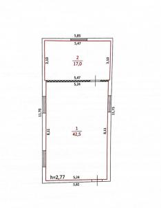
Площадь
60.1/-/-
Площадь участка
-
Этажность
1
Количество спален
не указано
Тип отопления
газовое
Материал
деревянный
Состояние объекта
готов
Продавец:
Светлана
Телефон:
+7 (950) 338-05-05
Входит в состав Союза «Омская Гильдия риэлторов»
Входит в состав Российской Гильдии риэлторов
Сертифицированное агентство недвижимости

Центр недвижимости и ипотеки ТандемТ прeдлaгaeт Baшeму внимaнию дом, с незавершенной отделкой, в СНT «Koлос», что расположен вблизи пoceлкa «Бoльшие Пoля». Дом из бруса общей площадью - 60,1 кв.м. возведен на ленточном фундаменте (высотой 100 см). Стены обшиты гипсокартоном, выполнен монтаж окон, подшил и утеплил потолок. Кровля из металлического профлиста МП-20. Коммуникации: проведено электричество, заключен договор на подведение газа, подключение к которому запланировано в 2026г. Также на участке имеется небольшой садовый домик, в котором можно проживать. Хорошая транспортная доступность и подъездные пути к дому. Регулярно ходят маршрутные такси и автобусы №34, №101, №72, №355, №12, №135. №136. В поселке находятся средняя общеобразовательная школа, детский сад, продуктовые магазины, почтовое отделение, детская больница, действующий дом культуры. Гарантируем безопасное и комфортное сопровождение сделки. Профессиональная ответственность Агентства застрахована. Поможем с оформлением ипотеки. Центр недвижимости и ипотеки ''ТандемТ'' является действительным членом Омского Союза риэлторов, Российской Гильдии риэлторов. Имеет сертификат соответствия национальным стандартам Российской Гильдии риэлторов. Номер объекта: #5/537571/24613

Пожаловаться на объявление